1. Immobilier
  2. Achat neuf
  3. Achat Appartement neuf
  4. Achat Appartement neuf MIMIZAN (40200)

Appartement F2 à vendre 2 pièces - 43,73 m2 MIMIZAN - 40

Ref : 7135

171 500 €

  • Honoraires charge vendeur
Appartement F2 à vendre - 2 pièces - 43.73 m2 - MIMIZAN - 40 - AQUITAINE - Century 21 Group Immo
Appartement F2 à vendre - 2 pièces - 43.73 m2 - MIMIZAN - 40 - AQUITAINE - Century 21 Group Immo
Appartement F2 à vendre - 2 pièces - 43.73 m2 - MIMIZAN - 40 - AQUITAINE - Century 21 Group Immo
Envoyer un message
Message
Envoyer ce bien à un ami

Description

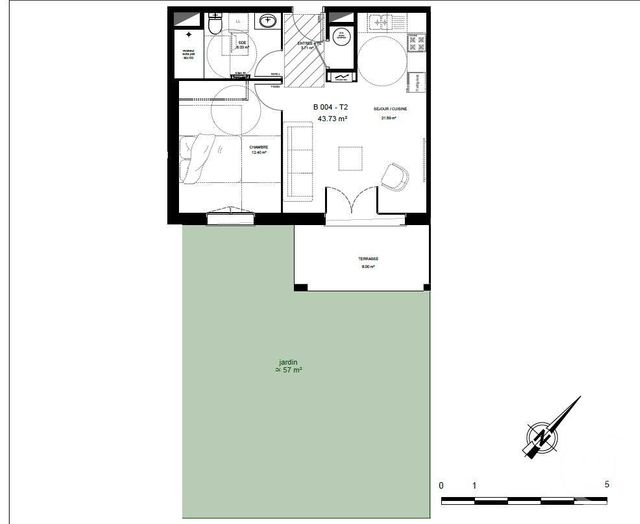
Appartement neuf en rez de chaussée, d'environ 43 m², livré 2ème trimestre 2027, dans une petite copropriété composée de deux bâtiments.
Cet appartement comprend, une entrée avec placard, une cuisine ouverte sur pièce de vie, deux chambres, une salle d'eau et un wc indépendant.
Terrasse. Jardinet de 57 m², très agréable pour des journée ou des soirées détente.
Cadre de vie privilégié à proximité immédiate du centre-ville, à 5 kms des plages et en lisière de forêt.
Ne manquez surtout pas cette opportunité, appelez nous pour réserver une visite..

Localisation

Laissez-nous vos coordonnées pour obtenir la localisation

Envoyer

Afficher sur la carte :

Demander la localisation

Vue globale

  • Surface totale : 43,7 m2
  • Surface habitable : 43,7 m2
  • Type d'appartement : F2
  • Étage : Rez-de-chaussée
  • Nombre de pièces : 2
    • Entrée (3,7 m2)
    • séjour / cuisine (21,6 m2)
    • Chambre (12,4 m2)
    • Cuisine
    • Salle d'eau/WC (6,0 m2)
    • Terrasse (8 m2)
    • Jardinet (57 m2)
  • Type de construction : Traditionnelle

Équipements

Les plus

P

Parking exterieur

Terrasse

Général

  • Parking exterieur
  • Chauffage : Individuel electricité
  • Eau chaude : Ballon thermodynamique
  • Toiture : Tuile
  • Videophone

À savoir

Envoyer à un ami

Envoyer

Envoyer un message :

Envoyer

Créer votre alerte

Rappel de vos critères de recherche :

Erreur dans les critères envoyés

Limite d'alertes atteinte

Cette alerte existe déjà

Cette alerte est déjà enregistrée pour cette adresse email. Vous continuerez à recevoir les biens correspondant à vos critères.

Une erreur est survenue

Merci de réessayer ultérieurement.

Votre alerte a été créée

Vous recevrez les biens correspondant à vos critères.

logo vente privées

48h

d’avance sur
le marché

Prenez un temps d’avance sur le marché en profitant gratuitement des Ventes Privées CENTURY 21

Si ce n’est pas déjà fait, créez votre compte client pour recevoir en avant-première des biens exclusifs, réservés à nos clients pendant les 48 premières heures suivant leur commercialisation.

Nos agences proposent régulièrement des biens comme celui que vous cherchez

Ne ratez pas une opportunité, on vous alerte en priorité !

Êtes-vous actuellement propriétaire de votre bien ?
Créer une alerte
Je souhaite être alerté
Voir les biens correspondants